REQUEST A TOUR If you would like to see this home without being there in person, select the "Virtual Tour" option and your agent will contact you to discuss available opportunities.
In-PersonVirtual Tour

$ 725,000
Est. payment | /mo
13 Beds
13 Baths
2,850 SqFt
$ 725,000
Est. payment | /mo
13 Beds
13 Baths
2,850 SqFt
Key Details
Property Type Multi-Family
Listing Status Pending
Purchase Type For Sale
Square Footage 2,850 sqft
Price per Sqft $254
Bedrooms 13
Full Baths 13
Property Description
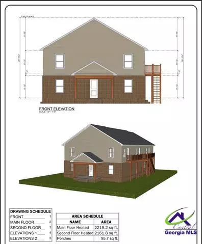
NEW CONSTRUCTION INVESTMENT! Modern 7-Unit Multi-Family Investment Opportunity Near Fort Valley State University Discover this brand-new multi-family property offering exceptional investment potential in a prime location. This newly constructed 7-unit commercial complex spans a total heated 4, 381 square feet and features a thoughtful mix of living spaces to maximize rental appeal and revenue potential. The property includes five spacious two-bedroom, two-bathroom units, complemented by two cozy one-bedroom, one-bathroom apartments. Each residence has been crafted with attention to detail and modern living requirements in mind including a stove/fridge/microwave and washer dryer hookups. The property features inviting covered porch area, providing comfortable outdoor spaces for relaxation and community building. The property's proximity to Fort Valley State University makes it an especially attractive location for those seeking housing near educational facilities. Just a short distance away is the natural beauty of Everett Square, offering green space for recreation and outdoor activities. The vibrant university environment ensures a dynamic community atmosphere throughout the year. This turn-key property requires minimal initial maintenance, allowing investors to focus on tenant acquisition rather than renovation concerns. The strategic unit mix accommodates a variety of housing needs with different floor plan options. For savvy investors looking to expand their portfolio with a contemporary multi-family property in a university-city setting, this new construction represents an opportunity that combines location advantages with the appeal of fresh, modern accommodations.
Location
State GA
County Peach
Listed by Angelica Watson • Real Broker LLC

"My job is to find and attract mastery-based agents to the office, protect the culture, and make sure everyone is happy! "
angelicasellsgahomes@gmail.com
800 Battery Ave SE Ste 100 Atlanta, GA 30339, Atlanta, Georgia, 30339, USA

